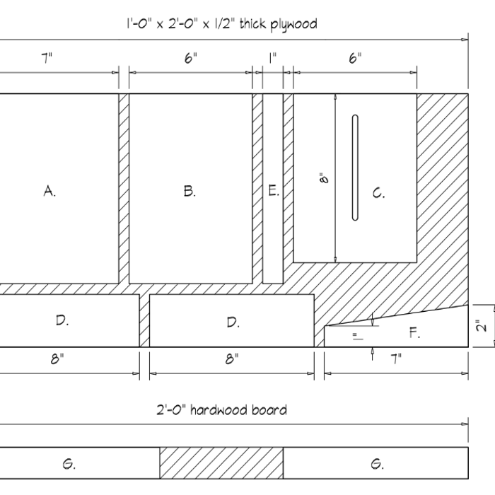
Tenoning Jig
Tenoning Jig
Regular price
$2.99 USD
Regular price
Sale price
$2.99 USD
Unit price
per
Couldn't load pickup availability
Difficulty: 🔨 (Easy)
Easy to make, free to keep!
We modeled this tenoning jig after one our grandpa built more than 50 years ago! It will take you an hour to make, and it will become a mainstay in your jig arsenal in no time.This plan is also our free plan. Simply subscribe your email to our newsletter, and you will be given a discount code to purchase this plan for free. You will experience what makes our woodworking plans different than our competitors'.
Dimensions
Dimensions
Materials
Materials



